ALVAND COMMERCIAL CENTER

2017 - Concept Design
  |    |    |    |  

Facts + Figuress
LocationIran , Alvand
Date Of Design2017
Area52600
Height23
StatusConcept Design
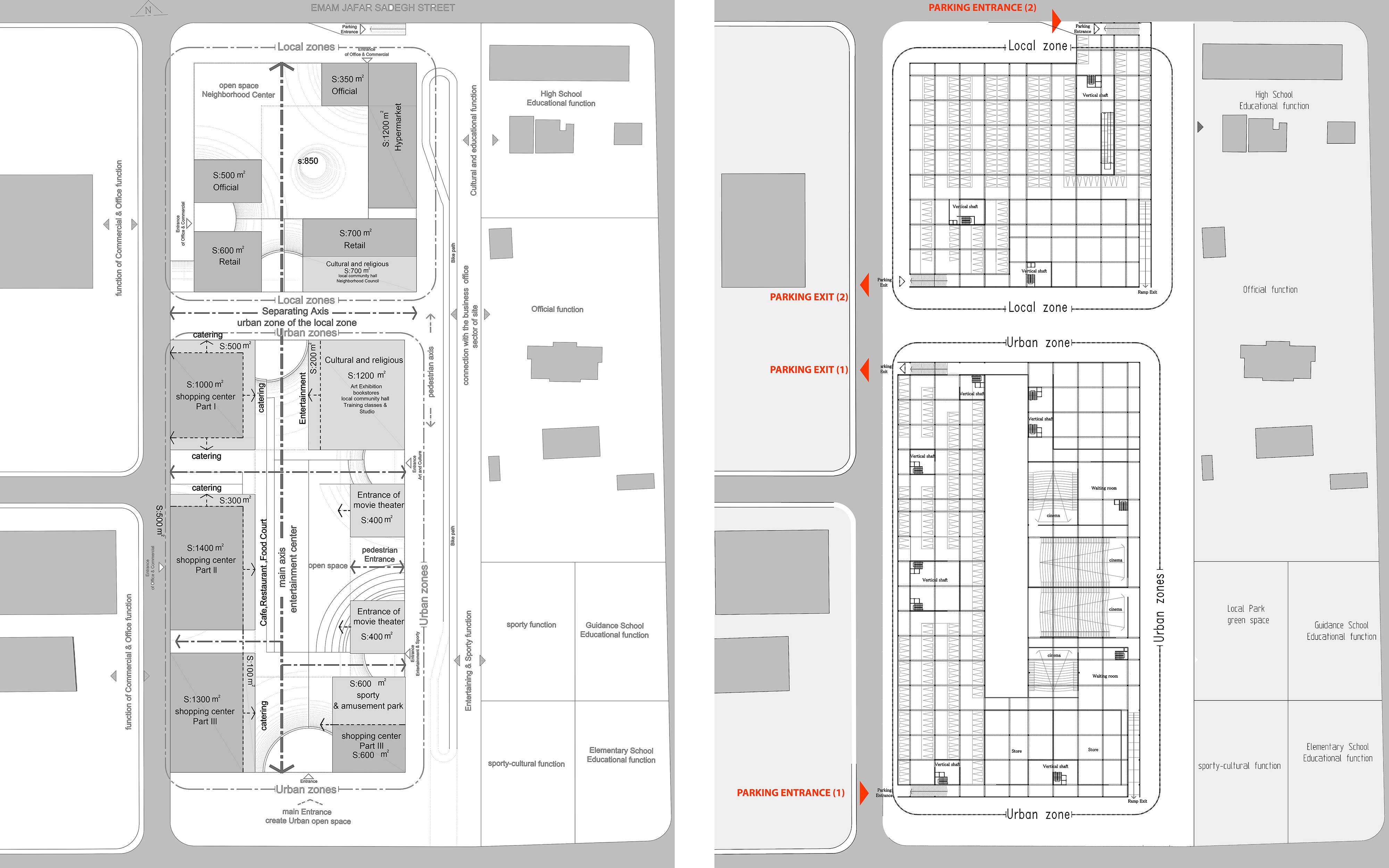
Description

In recent years, the city of Alvand has experienced rapid population growth driven by labor migration. This urban expansion has prioritized residential development over urban design, resulting in a lack of recreational and public leisure spaces. Such shortcomings, observed not only in Alvand but also in many other industrial cities, have diminished the social fabric of the city and may even contribute to social instability and crime. This project seeks to address this urban deficiency by placing recreational and leisure spaces at the core of its design approach. Accordingly, the site program is structured around leisure as its primary concept, while commercial activities are integrated alongside it. In this way, embedding commerce within the framework of leisure not only ensures the long-term sustainability of the project within the community but also enhances its economic vitality. Moreover, the design draws inspiration from the principles of Iranian architectural geometry and incorporates a language rooted in the collective memory of the region. This approach strengthens the sense of place and belonging, creating a site with lasting identity and cultural resonance.

در شهر الوند، طی سال‌های اخیر رشد سریع جمعیت و هجوم کارجویان باعث شده است توسعه شهری بیشتر بر سکونت تمرکز یابد تا بر کیفیت فضاهای عمومی و فراغتی. نتیجه این روند، کمبود فضاهای تفریحی و ضعف در استخوان‌بندی اجتماعی و شهری است؛ موضوعی که نه تنها در الوند بلکه در بسیاری از شهرهای صنعتی مشاهده می‌شود و می‌تواند حتی زمینه‌ساز آسیب‌های اجتماعی و افزایش جرم گردد. در این پروژه تلاش شد تا این خلأ اساسی به عنوان محور اصلی طراحی در نظر گرفته شود. بدین ترتیب، برنامه‌ریزی سایت بر پایه‌ی فضاهای فراغتی و تفریحی شکل گرفت و مقوله‌ی تجارت در پیوند با این هسته‌ی مرکزی دنبال شد. در واقع، حضور فعالیت‌های تجاری در دل فضاهای فراغتی، پایداری پروژه را در بستر اجتماع تقویت کرده و به رونق اقتصادی آن کمک می‌کند. همچنین، طراحی پروژه با الهام از هندسه و نظام معماری ایرانی و بهره‌گیری از زبان نزدیک به خاطره جمعی منطقه انجام شد تا حس تعلق مکان در کاربران تقویت گردد و هویتی ماندگار برای سایت شکل گیرد.

Facebook Twitter Google LinkedIn Pinterest telegram
SITE MAPS | RSS FEEDS | FOLLOW US