ATTIC HOUSE

2018 - Concept Design
  |    |    |  

Facts + Figuress
LocationNour , Mazandaran , Iran
Area600 m2
Height12 m2
StatusConcept Design
Description

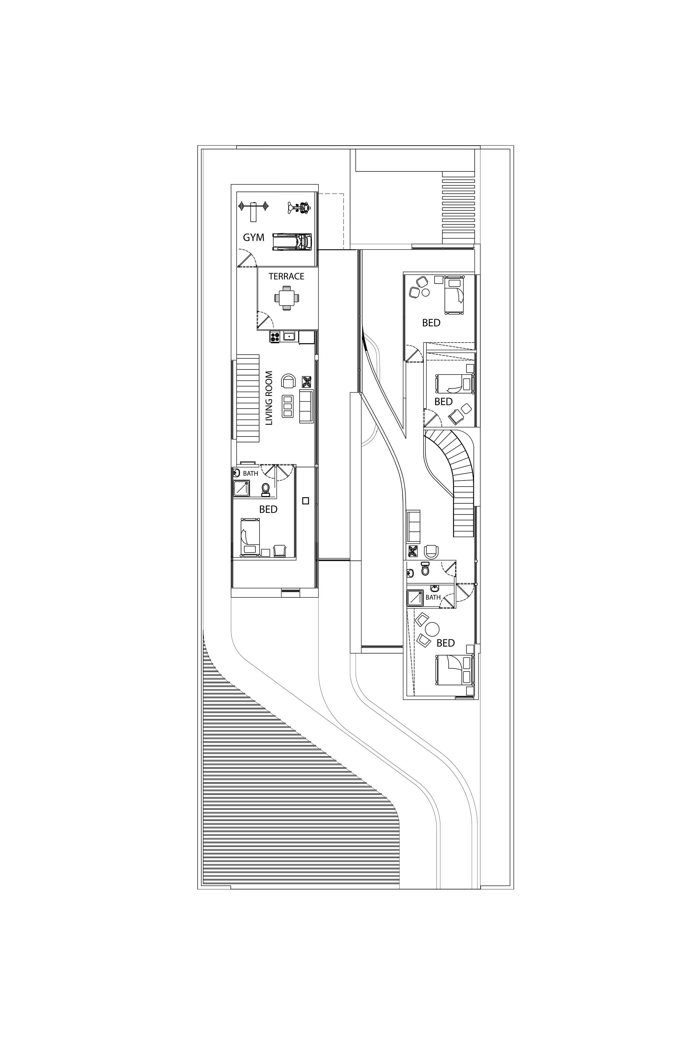
این بنا در دو طبقه به متراژ 450 متر مربع طراحی شده که بخش های عمومی در طبقه همکف و بخش های خصوصی در طبقه اول جانمایی شده است . توجه به استفاده از سقف های شیروانی با ماهیتی امروزی می تواند تصویر ذهنی و نوستالژیک از تجسم ساختمان های ویلایی منطقه را در یک قالب جدید برای ما شکل دهد .طراحی فضاهای سیال در تعامل با ساختار شیروانی پروژه تجربه حضور در یک فضای جذاب و خاطره انگیز را برا ما شکل می دهد پله سیال در طبقه همکف و یک پل معلق میان طبقات در طبقه اول بر سیالیت فضای داخلی پروژه افزوده است . تفکیک فضاهای عمومی و خصوصی و ارتباط دقیق شمالی و جنوبی بازشو ها برای به حداکثر رساندن فرصت تهویه طبیعی هوا از ویژگی های دیگر این ویلای مدرن و زیبا است . همچنین وجود پنجره ها و باز شو های بلند می تواند حداکثر ارتباط بصری با فضای سبز و طبیعت مقابل آن را پدید آورد .در این راستا کل فضای طبقه همکف به صورت فلت و یکسره طراحی شده و فقط یک آشپزخانه مرکزی و یک سرویس بهداشتی در ضلع غربی تعبیه شده است و هیچ فضای دیگری متراژ طبقه همکف را اشغال نکرده است در نتیجه ارتباط هال و نشیمن به صورت بی واسطه متراژی نزدیک به 200 متر مربع را شکل می دهندکه هم از سمت شمال و هم از سمت جنوب با بازشو هایی پانوراما , نور و تهویه هوا را به داخل هدایت می نمایند. این امکان این فرصت را برای ما فراهم می کند تا در روز های معمول سال با باز شدن پنجره های دو سوی شمالی و جنوبی ساختمان بیشترین میزان کوران هوا ممکن باشد و بدون نیاز به تاسیسات مکانیکی رطوبت محیط کاهش یابد .

 

 

 

 

 

 

 

 

 

 

 

 

 

 

 

Facebook Twitter Google LinkedIn Pinterest telegram
SITE MAPS | RSS FEEDS | FOLLOW US