SIVANANDA YOGA CAMP

2019 - Concept Design
  |    |    |    |  

Facts + Figuress
LocationVal Morin, Quebec,Canada
Date Of Design2019
Area1000 m2
Height15 m
StatusConcept Design
Description

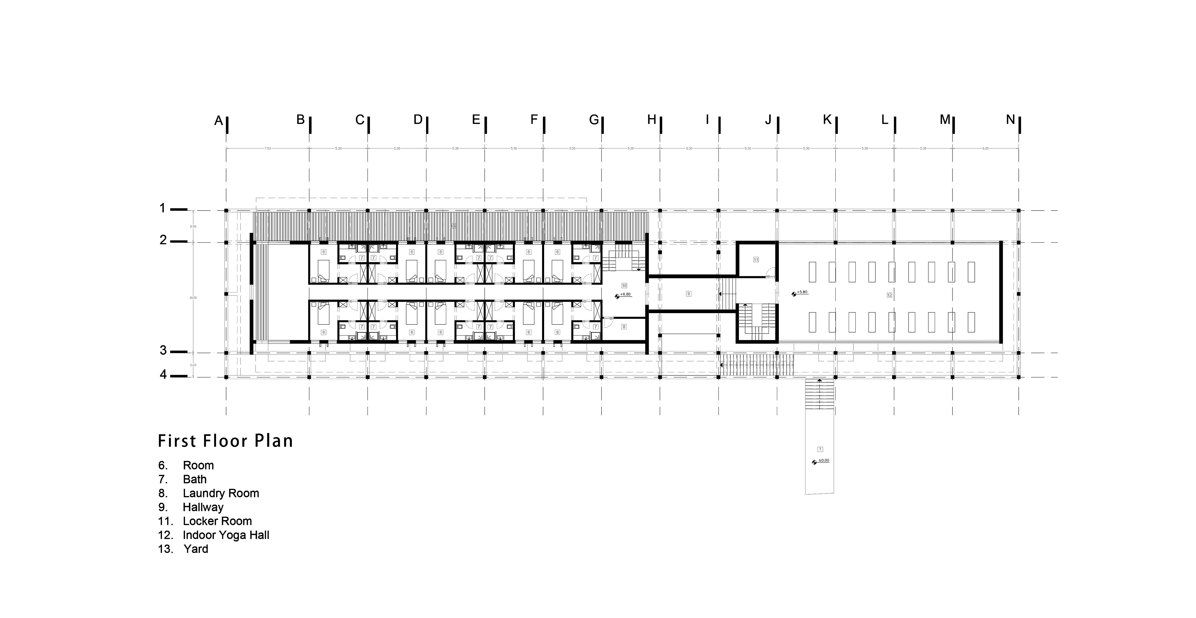
"Sivanda" yoga center in a mountainous area in Canada covered with native trees and dedicated to yogis. On one side of the building, accommodation units are located, and on the other side, there are yoga halls on three floors. This project consists of a central core that is placed inside a structural grid The central core plays the role of functional spaces and the outer grid plays a role as a structural element In the distance between the central core and the structural grade, there is an all-over terrace that connects all parts of the building like a bridge. This all-round terrace provides an extroverted structure for the project, where every room has independent access to this terrace, and because of this, it is possible to have a view and natural ventilation for all rooms.

مرکز یوگا "سیواندا" در منطقه ایی کوهستانی در کانادا که پوشیده از درختان بومی است قرار دارد و به علاقه مندان یوگا اختصاص یافته است ، در یک سمت بنا بخش های اقامتی و در بخش دیگر فضاهای مرتبط به یوگا در سه طبقه قرار گرفته است. این پروژه از یک هسته مرکزی که در درون یک گرید سازه ایی قرار گرفته تشکیل شده است که هسته مرکزی در نقش فضاهای عملکردی میانی و گرید بیرونی به عنوان عنصر سازه ایی نقش ایفا می کند و در فضای میانی آن دو مسیر های حرکتی که تراس های حاشیه ایی را به هم متصل می کنند جانمایی شده است، این ساختار یک سازماندهی برونگرا را برای پروژ ایجاد می کند که هر اتاق را به صورت جداگانه به یک تراس بیرونی متصل می کند در نتیجه دسترسی به دید و منظر و استفاده از نور و تهویه مناسب را آسان میکند .

Facebook Twitter Google LinkedIn Pinterest telegram
SITE MAPS | RSS FEEDS | FOLLOW US