THE BOXES NO 5 (THE INWARD BOX)

2022 - Concept Design
  |    |    |    |    |  

Facts + Figuress
LocationYAZD, IRAN
Date Of Design1401/3/5
Area367
StatusConcept Design
Description

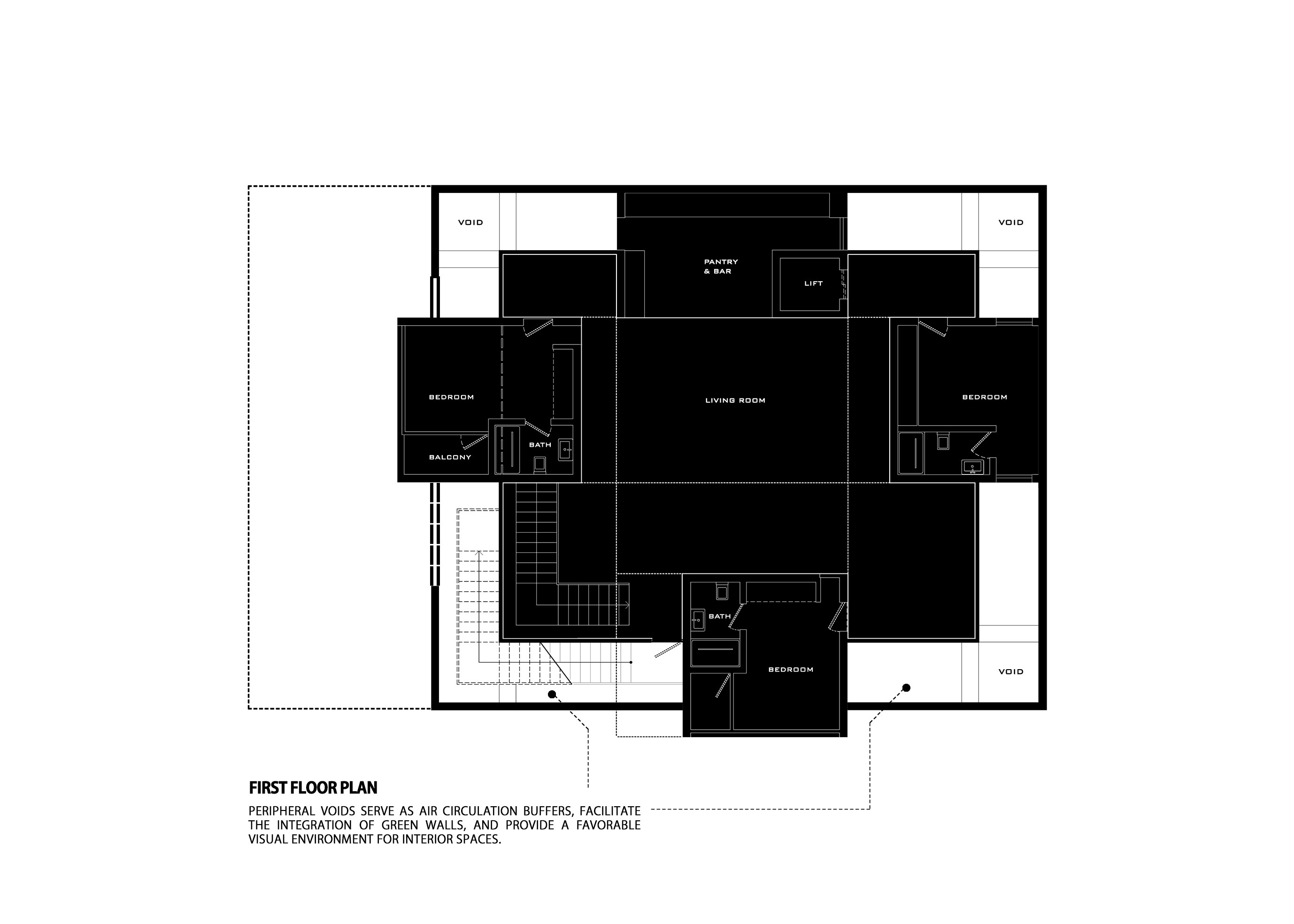
“THE INWARD BOX” is a contemporary reinterpretation of Meybod’s vernacular architecture, proposing a residential typology for hot–arid climates. In Iranian architecture, inwardness and outwardness have historically structured domestic organization; in Meybod, climate fostered inward-oriented courtyard houses with program arranged around a central void. Beyond mitigating heat and solar gain, this model functioned as a cultural mechanism regulating privacy, visibility, and the public–private gradient. In recent decades, under modern urbanization and the International Style’s emphasis on transparency and openness, this spatial logic has undergone transformation, generating climatic and cultural tensions. Within this context, the project proposes an intermediate condition: the core maintains outward visual orientation while its spatial organization remains inward-oriented. A dense outer envelope, detached from the central functional mass, acts as a high-thermal-mass buffer regulating heat exchange. Peripheral voids establish continuous vertical ventilation driven by pressure and thermal differentials, channeling air upward—operating similarly to a traditional windcatcher after passing over a water surface at the lowest level. Combined with a chimney-like roof opening, this system enables passive ventilation without mechanical reliance. Inner layers admit filtered light and air primarily through these voids. In such climates, direct solar radiation induces glare and thermal gain; thus, daylight enters indirectly, producing a balanced, moderated atmosphere. Culturally, inwardness in Meybod’s historic fabric is not merely climatic but a stabilized framework for privacy. Through minimal external openings, peripheral voids, and a solid perimeter shell, the project reinforces spatial privacy by regulating boundaries between private and public domains in continuity with regional dwelling traditions. At the urban scale, the mass aligns with the visual rhythm of the historic fabric, maintaining a calm, introverted presence. Thus, “THE INWARD BOX” integrates perceptual outwardness with the climatic and cultural imperatives of inwardness in a simultaneous duality, forming a hybrid spatial structure.

خانه درون تلاشی است برای بازخوانی معاصر معماری درون‌گرای بومی میبد و ارائه چشم‌اندازی برای یک تیپولوژی سکونتی در اقلیم‌های گرم و خشک. در معماری ایران، دو پارادایم بنیادین درون‌گرایی و برون‌گرایی همواره چارچوب سازمان‌دهی خانه را شکل داده‌اند؛ میبد نیز به‌واسطه اقلیم گرم و خشک از الگوی درون‌گرا با حیاط مرکزی و استقرار فضاهای عملکردی پیرامون آن تبعیت کرده است. این الگو علاوه بر پاسخ اقلیمی به گرما و تابش شدید، سازوکاری فرهنگی برای تعریف حریم، کنترل دید و تنظیم مرزهای عمومی و خصوصی بوده است. بااین‌حال، در دهه‌های اخیر و تحت تأثیر ساختارهای مدرن شهری و سنت بین‌المللی با تأکید بر شفافیت و گشودگی، این سازمان فضایی دستخوش تغییر شده و چالش‌هایی اقلیمی و فرهنگی را به همراه آورده است. پروژه "خانه درون" در این بستر، وضعیتی بینابینی میان این دو پارادایم پیشنهاد می‌کند؛ هسته مرکزی بنا گرایش بصری به بیرون دارد، در حالی که منطق سازمان فضایی آن درون‌گرا باقی می‌ماند. بدین‌ترتیب ویژگی‌های ادراکی معماری برون‌گرا با ملاحظات اقلیمی و فرهنگی معماری درون‌گرا در یک دوگانگی هم‌زمان ادغام شده و ساختاری هیبریدی شکل می‌گیرد. از منظر اقلیمی، حیاط مرکزی به‌صورت افقی بازتولید نشده، بلکه در قالب سیستمی عمودی–لایه‌ای پیرامون بنا تعریف شده است. وویدهای حاشیه‌ای در ترکیب با یک هرنو در بالاترین لایه سقف، سامانه‌ای پیوسته برای تهویه عمودی ایجاد می‌کنند که بر اساس اختلاف فشار و دما، جریان هوا را از پایین به بالا هدایت کرده و نمونه‌ای از تهویه طبیعی غیرفعال را بدون اتکا به سیستم‌های مکانیکی فراهم می‌آورد. این سازوکار بازتفسیر منطق عملکردی بادگیر سنتی است، نه تقلید فرمی آن. در این ساختار، پوسته صلب و متراکم بیرونی همچون خانه‌های سنتی به‌عنوان یک با جرم حرارتی بالا عمل کرده و با کنترل تبادل حرارتی در کاهش بار سرمایشی مؤثر است، در حالی که لایه‌های درونی نور و هوا را به‌صورت فیلترشده دریافت می‌کنند. نور در این پروژه نه عنصری تزئینی بلکه پدیده‌ای کنترل‌شده است؛ زیرا در اقلیم‌های شدید، تابش مستقیم می‌تواند موجب خیرگی و افزایش بار حرارتی شود، ازاین‌رو نور به‌صورت شکسته و منعکس‌شده وارد فضا شده و کیفیتی متعادل و آرام ایجاد می‌کند. از منظر فرهنگی، درون‌گرایی در بافت تاریخی میبد صرفاً واکنشی اقلیمی نیست بلکه چارچوبی تثبیت‌شده برای تعریف حریم است. پروژه با حداقل بازشو به بیرون، وویدهای حاشیه‌ای و استقرار در پوسته‌ای صلب پیرامونی، مفهوم محرمیت را بازتولید کرده و مرز میان فضای خصوصی و عمومی را تنظیم می‌کند؛ سازوکاری که ریشه در الگوی زیست نسل‌های گذشته این حوزه جغرافیایی دارد. در مقیاس شهری، توده پروژه در امتداد زبان کالبدی بافت سنتی و با حداقل گشودگی به بیرون، به‌صورت حجمی صلب با بازشوهای کنترل‌شده ظاهر می‌شود که با ریتم بصری و سکون کالبدی پیرامون هم‌نواست و در عین حال حضوری آرام و محرم‌گونه در شهر اتخاذ می‌کند بدین‌ترتیب، "خانه درون" با تلفیق سازمان فضایی درون‌گرا، پوسته‌ای با جرم حرارتی کنترل‌شده، تهویه عمودی غیرفعال و نور فیلترشده، پیشنهادی معاصر برای بازاندیشی نسبت میان درون‌گرایی و برون‌گرایی در سکونت بومی اقلیم‌های خشک ارائه می‌دهد.

 

 

 

 

 

 

 

 

 

 

 

 

 

 

 

 

 

 

 

 

 

 

 

 

 

 

Facebook Twitter Google LinkedIn Pinterest telegram
SITE MAPS | RSS FEEDS | FOLLOW US