4 PLUS 2 RESIDENTIAL COMPLEX

2023 - Concept Design
  |    |    |    |  

Facts + Figuress
LocationQOM, IRAN
Date Of Design1402/8/01
Area1500
StatusConcept Design
Description

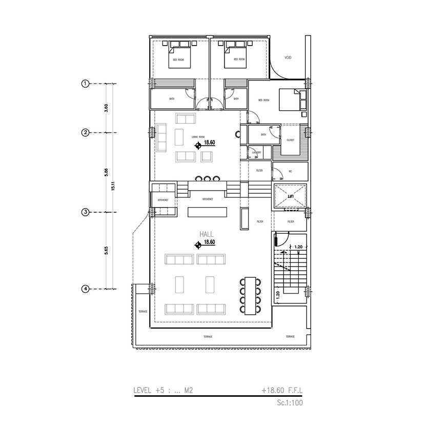
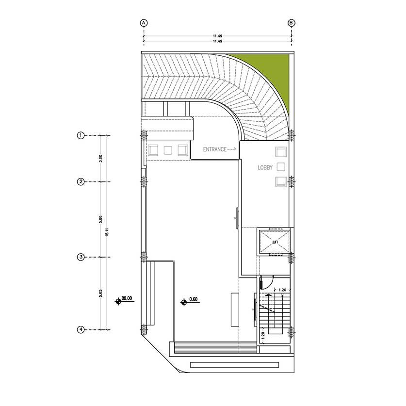
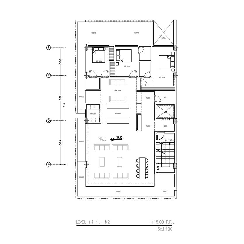
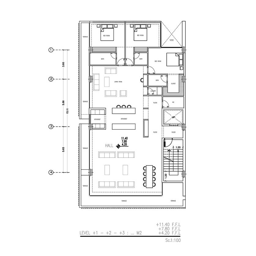
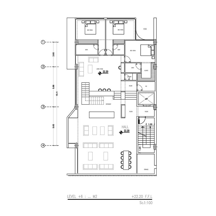
The residential building "four plus two" consists of a double morphological language that separation of these two areas is formed by the urban skyline in the neighborhoods In the lower part (four lower floors), a two-shell facade with a brick texture (opening) is designed introvertedly. which, on the one hand, makes it possible to enjoy a glass panoramic view behind it, and on the other hand, suggests a two-shell climate structure. And in the upper part of it, two units with an extroverted structure in the form of duplex and triplex with the benefit of the city view (according to the customer's needs) are planned .

ساختمان مسکونی "چهار به اضافه دو" از یک زبان مورفولوژیک دوگانه تشکیل شده است که فصل تفکیک این دو حوزه را خط آسمان شهری در همسایگی ها شکل می دهد ، در بخش تحتانی ( چهار طبقه زیرین ) یک نمای دو پوسته با بافت آجری ( باز شونده ) به صورت درونگرا طراحی شده است که از طرفی امکان بهره مندی از یک نمای پانورامای شیشه ایی را در پشت آن ممکن می سازد و از طرفی یک ساختار اقلیمی دو پوسته را پیشنهاد می دهد و در بخش فوقانی آن دو واحد با ساختاری برونگرا به صورت دوبلکس و تریبلکس با بهره مندی از دید و منظر شهری ( با توجه به نیاز مشتری) پیش بینی شده است .

Soltanpour studio in collaboration with Axis architects

 

 

 

 

 

 

 

 

 

 

 

 

 

 

Facebook Twitter Google LinkedIn Pinterest telegram
SITE MAPS | RSS FEEDS | FOLLOW US