CIP-IMAM KHOMEINI AIRPORT

2025 - Competition
  |    |    |    |  

Facts + Figuress
LocationTEHRAN, IRAN
Date Of Design1403/06/01
Area15000
StatusCompetition
Description

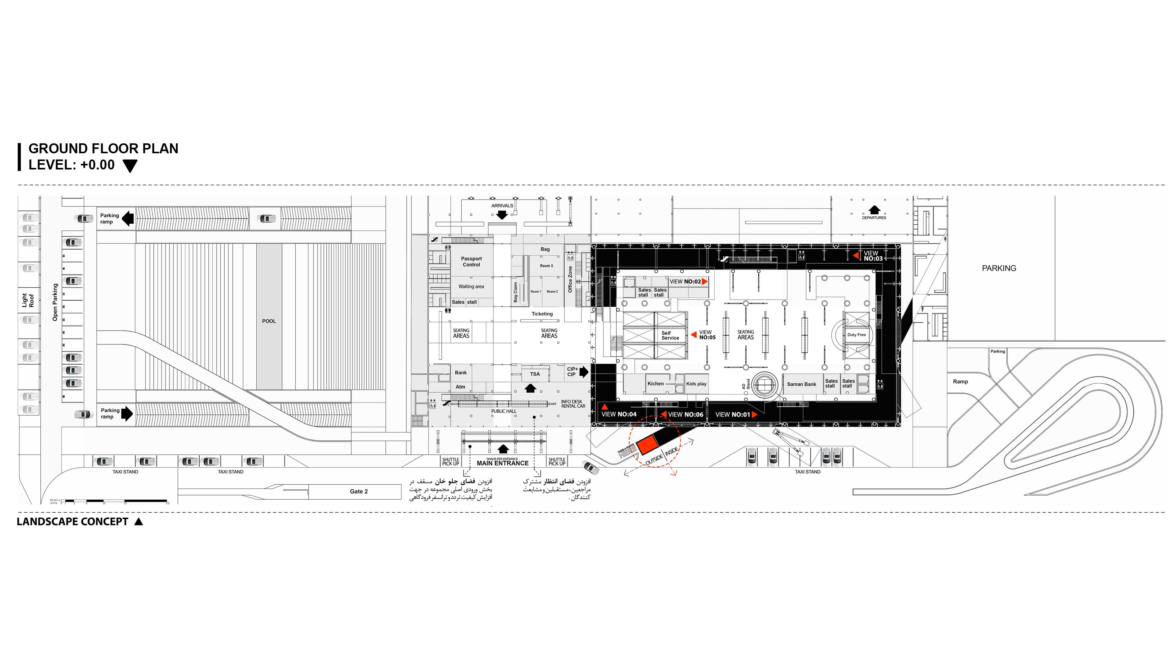
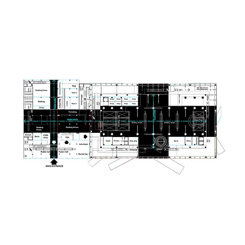
This project involves the **redesign and expansion of the CIP Terminal at Imam Khomeini International Airport** in Tehran, Iran. The existing building is currently operational and serving passengers. The proposed scheme covers approximately **15,000 square meters** of renovation and new development. Initial studies revealed that the building suffers from disorganization on two main levels: 1. Intersecting Interior Circulation** Over time, successive changes of use have created overlapping and inefficient circulation routes. The central hall—intended to provide comfort and convenience—has instead become a congested and unsafe passageway. The new design addresses this by reorganizing the internal connections and relocating some functions to the peripheral envelope, thereby freeing the central space and ensuring a safer, more efficient environment. 2. Incoherent External Additions** Through the years, various uncoordinated extensions have been added to the structure, disrupting the integrity of the original massing. The new proposal integrates these additions within the landscape and the overall architectural composition, restoring the autonomy and legibility of the primary building. The overarching goal** of this redesign is to re-establish a **cohesive whole**: transforming the fragmented and rigid current condition into a unified, readable architectural entity. At the same time, it aims to redefine the relationship between the “inside” and “outside” of the project, while fully respecting the airport’s security requirements.

پروژه‌ی حاضر مربوط به بازطراحی و توسعه‌ی ساختمان سی‌آی‌پی فرودگاه بین‌المللی امام خمینی ایران است؛ ساختمانی که در حال حاضر فعال بوده و پذیرای مسافران می‌باشد. این طرح با زیربنای تقریبی 15000 مترمربع بازسازی و گسترش یافته است.

مطالعات اولیه نشان داد که بنا در دو سطح اصلی دچار آشفتگی است :

1. روابط درونی متقاطع

تغییر کاربری‌ها در طول زمان باعث ایجاد مسیرهای رفت‌وآمد پراکنده و تداخل عملکردها شده است. فضای مرکزی که باید آرامش و آسایش مسافران را تأمین کند، به گذرگاهی آشفته و ناایمن تبدیل شده. در طرح جدید با سامان‌دهی این روابط و انتقال برخی عملکردها به پوسته‌ی پیرامونی، فضای مرکزی آزاد و کارآمد خواهد شد.

2. الحاقات بیرونی ناهمگون

طی سال‌ها ساختمان‌ها و فضاهای نامنسجمی به بنا اضافه شده که هویت اصلی آن را مخدوش کرده‌اند. در طراحی جدید این الحاقات با فضای سبز و ساختار کلی یکپارچه می‌شوند تا استقلال و خوانایی معماری بنا بازگردد.

هدف نهایی این بازطراحی، تبدیل وضعیت تکه‌تکه و صُلب فعلی به یک مجموعه‌ی یکپارچه و خواناست؛ به‌گونه‌ای که ضمن حفظ ملاحظات امنیتی، رابطه‌ای تازه و متعادل میان «درون» و «بیرون» بنا شکل گیرد.

 

 

 

 

 

 

 

Facebook Twitter Google LinkedIn Pinterest telegram
SITE MAPS | RSS FEEDS | FOLLOW US